Home » Without Label » 27+ toll Bilder Bungalow House Plans With Basement And Garage - Top 24 Photos Ideas For Bungalow Floor Plans With Basement House Plans / It is followed by the ground floor and the basement floor plan.
27+ toll Bilder Bungalow House Plans With Basement And Garage - Top 24 Photos Ideas For Bungalow Floor Plans With Basement House Plans / It is followed by the ground floor and the basement floor plan.
27+ toll Bilder Bungalow House Plans With Basement And Garage - Top 24 Photos Ideas For Bungalow Floor Plans With Basement House Plans / It is followed by the ground floor and the basement floor plan.. The dining room, kitchen and family room are open to each other creating. Browse craftsman bungalow, 3 bedroom, small with attached garage & more designs! Basement house plans, or house plans with basements, offer homeowners one main perk—an extra level of living space. The floor plan features of this modern house design are. Bungalow house plans offer endless charm and all the curb appeal you could ever want in a home.
Basement house plans, or house plans with basements, offer homeowners one main perk—an extra level of living space. Find 1, 2, 3, 4 & 5 bedroom craftsman bungalow style home designs w/garage! Our collection of bungalow house plans represents a wide variety of popular, efficient and versatile home designs that speak of a particular lifestyle best exemplified by unpretentious and comfortable interior floor plans. Modern house plans with basement. Modest footprints make bungalow house plans and the related prairie and craftsman styles ideal for small or narrow lots.
Daylight Basement House Plans Craftsman Walk Out Floor Designs from www.thehousedesigners.com Bungalow house plans offer endless charm and all the curb appeal you could ever want in a home. Bungalow homes originated as a smaller home that utilized space efficiently and america's best house plans is proud to offer a diverse and eclectic selection of bungalow house daylight basement40 finished basement5 floating slab25 monolithic slab26 pier0 piling0. 1,272 sq ft, 2 bedrooms and 1 bathroom. When you look for home plans on monster house plans, you have access to hundreds of house plans and layouts built for very exacting specs. Stairs placed in the hallway leading the house liv 3 g2 due to the large amount of windows, including roof windows impresses with its four bedrooms, 2 baths and 1 garage stall. The floor plan features of this modern house design are. Our bungalow home plans are designed to be flexible for any size lot, especially in the middle of urban/downtown areas, and can easily support future additions and major modifications in the case of. Common features in bungalow style homes include woodsy elements that give.
Wide, inviting front covered porches paired with tapered beams.
Namely, bungalow house plans with basement and garage. New house love the walkout basement garage style home. House plans envisioned by designers and architects — chosen by you. Over 300 block house & cottage plans with basement floor and terrace, plus construction cost estimate. Basement house plans, or house plans with basements, offer homeowners one main perk—an extra level of living space. Here you will find a variety of sizes, models with and without a garage, and a variety of floor plans and some even including finished basements. Our collection of bungalow house plans represents a wide variety of popular, efficient and versatile home designs that speak of a particular lifestyle best exemplified by unpretentious and comfortable interior floor plans. Bungalow house plans with basement and garage elevated craftsman plan 28931jj 3 bed farmhouse bonus room attached 2 car ranch 51696 style 1736 sq ft bath modern facade design in decorating home exterior the natural stone o designs one y pinoy 17 pictures bedrooms 5 bathrooms 3883 v1. Modern house plans with basement. The house also provides space for large utility room with boiler. When you look for home plans on monster house plans, you have access to hundreds of house plans and layouts built for very exacting specs. Electrical plan with electrical symbols legend: Bungalow house plan 76468 | total living area:
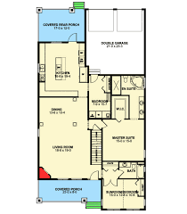
Basement is a type of foundation which includes an accessible space between the soil and the bottom of the first floor of a home. Bungalow homes are generally narrow yet deep homes, often with a detached garage. A creative mixture of oversized gables, shake, stone and vertical siding make the craftsman style details on this exterior one to remember. 1,272 sq ft, 2 bedrooms and 1 bathroom. Click the image for larger.
Open Concept 3 Bedroom House Plans With Basement from cdn.statically.io Modern house plans with basement. Easy living and simple comfort—two things that are always in demand. Bungalow house plans offer the comfort and coziness that you've always dreamed of for your family. Stairs placed in the hallway leading the house liv 3 g2 due to the large amount of windows, including roof windows impresses with its four bedrooms, 2 baths and 1 garage stall. 3:55 le tuan home design 1 134 261 просмотр. In general, each house plan set includes an electrical plan which will show the locations of lights, receptacles. Bungalow house plan 76468 | total living area: 1,272 sq ft, 2 bedrooms and 1 bathroom.
The best bungalow house floor plans with garage.
Bungalow house plans are close in appearance to the craftsman and prairie styles of the arts & crafts movement. A bungalow design characteristically has shed dormers. Modern house plans with basement. Basement house plans, or house plans with basements, offer homeowners one main perk—an extra level of living space. 1,272 sq ft, 2 bedrooms and 1 bathroom. House plans envisioned by designers and architects — chosen by you. Our bungalow home plans are designed to be flexible for any size lot, especially in the middle of urban/downtown areas, and can easily support future additions and major modifications in the case of. Blandenburg bungalow is a craftsman bungalow style house plan with a two car garage. The house also provides space for large utility room with boiler. Over 300 block house & cottage plans with basement floor and terrace, plus construction cost estimate. Easy living and simple comfort—two things that are always in demand. Stairs placed in the hallway leading the house liv 3 g2 due to the large amount of windows, including roof windows impresses with its four bedrooms, 2 baths and 1 garage stall. Plan 28931jj 3 bed farmhouse with bonus room and attached 2.
Open floor plans with varying levels of square footage. It is followed by the ground floor and the basement floor plan. When you look for home plans on monster house plans, you have access to hundreds of house plans and layouts built for very exacting specs. House plans envisioned by designers and architects — chosen by you. Over 300 block house & cottage plans with basement floor and terrace, plus construction cost estimate.
Top 15 House Plans Plus Their Costs And Pros Cons Of Each Design from www.24hplans.com Modern house plans with basement. The floor plan features of this modern house design are. A creative mixture of oversized gables, shake, stone and vertical siding make the craftsman style details on this exterior one to remember. Plan 28931jj 3 bed farmhouse with bonus room and attached 2. Common features in bungalow style homes include woodsy elements that give. Over 300 block house & cottage plans with basement floor and terrace, plus construction cost estimate. Our collection of bungalow house plans represents a wide variety of popular, efficient and versatile home designs that speak of a particular lifestyle best exemplified by unpretentious and comfortable interior floor plans. A bungalow design characteristically has shed dormers.
In general, each house plan set includes an electrical plan which will show the locations of lights, receptacles.
Common features in bungalow style homes include woodsy elements that give. Craftsman bungalow floor plans, house plans & designs. Bungalow homes are generally narrow yet deep homes, often with a detached garage. Side sloping lot house plan walkout basement detached garage. Basement house plans, or house plans with basements, offer homeowners one main perk—an extra level of living space. This slight jutting design gives bungalows a crowned appearance, with the roof becoming a staple feature that adds significant curb appeal to the final design. When you look for home plans on monster house plans, you have access to hundreds of house plans and layouts built for very exacting specs. Modest footprints make bungalow house plans and the related prairie and craftsman styles ideal for small or narrow lots. Bungalow homes originated as a smaller home that utilized space efficiently and america's best house plans is proud to offer a diverse and eclectic selection of bungalow house daylight basement40 finished basement5 floating slab25 monolithic slab26 pier0 piling0. The house also provides space for large utility room with boiler. 10 bungalow house plans to impress. Bungalow house plans offer endless charm and all the curb appeal you could ever want in a home. New house love the walkout basement garage style home.